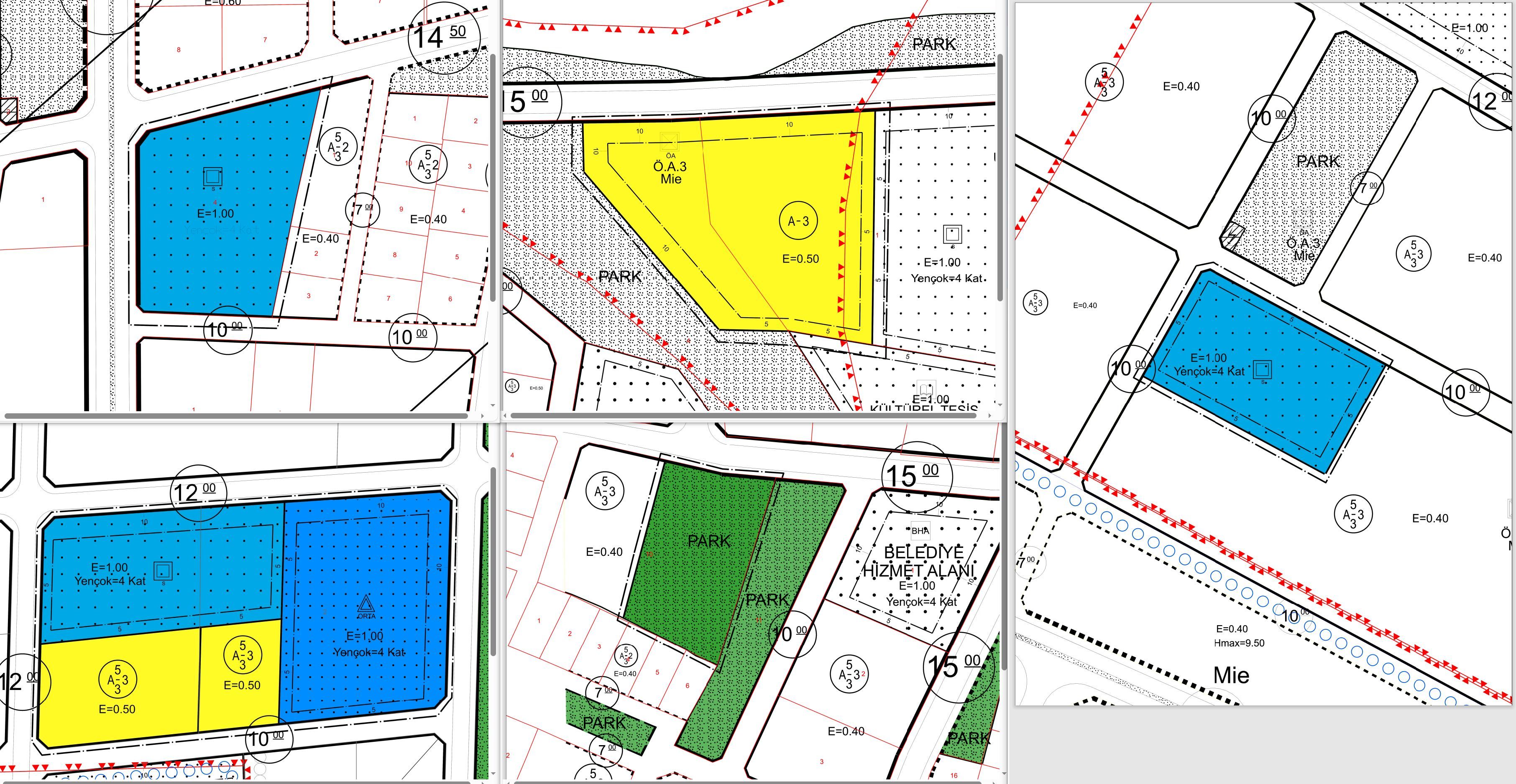
Tekirdağ Büyükşehir Belediyesi Plan Değişikliği Askı Duyurusu

Önerler Mahallesi, İmar Planlarında Kalan Muhtelif Parsellere ait 1/5000 Ölçekli Nazım İmar Planı değişikliği, Tekirdağ Büyükşehir Belediye Meclisinin 14.01.2026 tarih ve 115 sayılı kararıyla, 1/1000 Ölçekli Uygulama İmar Planı değişikliğine ait eklere aşağıdaki "Dökümanlar" kısmından ulaşabilirsiniz.


FOTOĞRAFLAR

1000 Plan değişikliği
5000 Plan Değişikliği

DOKÜMANLAR

Site Yönetimi Çorlu Belediyesi Bilgi İşlem Müdürlüğü l Tüm Hakları Saklıdır l